
















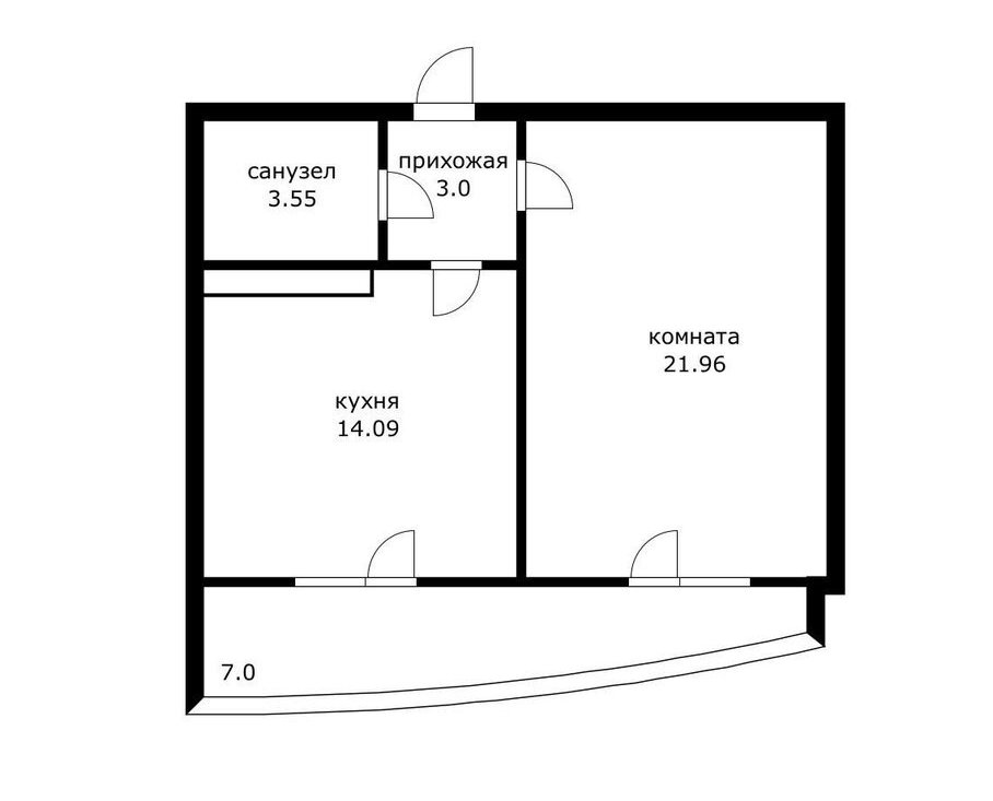
1-комнатная квартира: Краснодар, Обрывная улица, 22/1 (42.2 м²)
Продается однокомнатная квартира в жилом комплексе "ГАРАНТИЯ". Квартира расположена на 19-м этаже 21-ти этажного дома. Комплекс расположен на берегу реки в самой зеленой зоне Центрального округа Краснодара. Рядом находится лесопарковая зона "Красный Кут". На территории комплекса расположен авторский двор-сад с фонтанами, игровые площадки различной тематики, качели и арт-объекты .На территории строится современная общеобразовательная школа. В квартире большая лоджия с выходом из комнаты и кухни с витражным остеклением, что позволит вам наслаждаться впечатляющим видом и днем и вечером.
Особенности
Другие однокомнатные квартиры
1-к кв. Краснодарский край, Краснодар Старокубанская ул., 2/23к1 (30.0 м²)
1-к кв. Краснодарский край, Краснодар Новороссийская ул., 90/2к2 (31.1 м²)
1-к кв. Краснодарский край, Краснодар Новороссийская ул., 90/2к1 (44.0 м²)
1-к кв. Краснодарский край, Краснодар Старокубанская ул., 137к2 (40.5 м²)
Последние добавленные апартаменты
1-к кв. Краснодарский край, Краснодар ул. Имени Героя Советского Союза Николая Воробьева, 11 (36.0 м²)
1-комнатная квартира: Краснодар, улица имени В.Н. Мачуги, 166Ак2 (42 м²)
О нас говорят
Хорошая услуга «Личный помощник». За вами закрепляют менеджера, который подбирает для вас варианты, помогает с подписанием договора и проверкой квартиры. Константин оперативно отвечал на наши вопросы и подстраивался под возникающие в ходе поиска требования.
Ins Fairy
Нашел себе отличную квартиру в Мск на Локалс. В этот раз пользовался услугой Личный помощник; Каждый день мне присылали варианты и по моим ответам уточняли мои критерии. В итоге выбрали прямо то, что мне было надо!
Ilya Malov
Отличный сервис! Нужный вариант подобрали уже на следующий день после обращения. Документы с арендодателем я подписала в конце той же недели и сразу переехала. Квартира после ремонта, все новое, я — первый арендатор, до метро 15 минут пешком. Это потрясающе!
Maria Levkina
Поиски квартиры заняли ровно неделю, Андрей проверял все варианты и составлял подробное описание. Так же оказал помощь при подписании договора. И вот теперь, я снимаю квартиру без комиссии, от собственника, с хорошим ремонтом, в новом доме по приемлемой цене.
Dmitry Kovtun
Клиентоориентированность — на высшем уровне. И форма связи любая.. мне было удобно общаться через почту — не проблема: в будни и даже в выходные, и днем и ночью — постоянно на связи) В какой-то момент даже подумала, что личный помощник никогда не отдыхает))
Teresa Olehnovich
Услуга «Личный помощник» — это не только дешевле, чем платить деньги каким-то непонятным посредникам или риэлторам, но и гарантированная ежедневная консультация от грамотного специалиста. Одним словом, всё очень понравилось.
Алина Василевская
Моя оценка 5! Нашли с личным помощником то, что нужно!! Удобно и безопасно. Отличный, проверенный сайт! Спасибо, Локалс!
Еленка Потапова
Искал с помощью услуги «Личный помощник». Сервис справился с поставленной перед ним задачей — найти мне жильё в короткие сроки (дедлайн 1,5 недели). Спасибо!
Dimas
У меня только положительные впечатления остались. Мне присылал варианты каждый день, иногда даже дважды. Всегда оперативно реагировал на мои пожелания. В итоге, так и сняли одну из предложенных квартир и очень довольны.
Любовь












