



















1-комнатная квартира: Краснодар, улица Генерала Петрова, 5 (36.7 м²)
Продается уютная однокомнатная квартира, расположенная в ЖК Прованс.
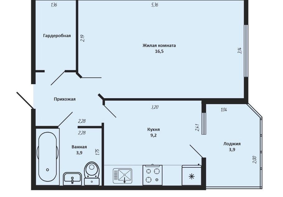
Общая площадь квартиры составляет 36.7 кв. м, из которых 16.7 кв. м — жилая, а кухня занимает 9.2 кв. м., рабочая зона кухни вынесена на балкон, что позволяет использовать, как дополнительное жилое пространство. Отлично подойдет для семьи с ребенком, у каждого будет своя комната.
Квартира находится на 1-м этаже (цоколь высокий) 4-этажного монолитного дома, построенного в 2013 году.
Высота потолков — 2.7 метра, что создает ощущение простора.
В квартире сделан качественный евроремонт, поэтому она готова к комфортному проживанию.
Кухня оборудована всем необходимым для удобства готовки, встроенные духовой шкаф, электрическая плита и вытяжка, так же выведена мокрая точка с очень удобным смесителем. Вода из крана идет питьевая, так как в комплексе собственная скважина.
Санузел совмещенный, выполнен в светлых тонах.
Полноценная гардеробная позволит Вам освободить пространство от лишних шкафов.
Из окон квартиры открывается вид на тихий двор.
Квартира продается со всей встроенной мебелью и техникой на кухне, остальное обсуждается.
Дом, в котором расположена квартира, находится в отличном состоянии. Придомовая территория благоустроена, есть места для парковки автомобилей ВСЕГДА.
В шаговой доступности от дома вы найдете все необходимые магазины.
Район с развитой инфраструктурой: поблизости расположены новые детский сад и школа, строится новая поликлиника, торговый центр Любимово в 10-15 минутах ходьбы по аллее, на машине в 3-х минутах, места для отдыха. Хорошая транспортная доступность позволяет быстро добраться до различных частей города (конечная остановка на выходе из комплекса).
Квартира продается по договору купли-продажи, возможна ипотека. Все документы в порядке. Вся сумма в договоре, без разбивки.
Если вы хотите приобрести уютное жилье, это предложение для Вас.
Остались вопросы?
Пишите, звоните, не забудьте сохранить объявление.
Особенности
Другие однокомнатные квартиры
1-комнатная квартира: Краснодар, улица Академика Лукьяненко, 28 (38 м²)
1-к кв. Краснодарский край, Краснодар ул. Академика Лукьяненко, 24 (39.2 м²)
Свободной планировки кв. Краснодарский край, Краснодар ул. Красных Партизан, 1/4к8 (33.0 м²)
1-к кв. Краснодарский край, Краснодар ул. Красных Партизан, 1/4к4 (36.0 м²)
Студия Краснодарский край, Краснодар ул. Западный обход, 39/1к4 (28.88 м²)
Свободной планировки кв. Краснодарский край, Краснодар ул. Западный обход, 39/2к5 (48.8 м²)
Последние добавленные апартаменты
1-к кв. Краснодарский край, Краснодар ул. Имени Генерала Корнилова, 1 (33.5 м²)
1-комнатная квартира: Краснодар, улица имени Героя Советского Союза Николая Воробьёва, 17 (43 м²)
1-комнатная квартира: Краснодар, улица имени Мурата Ахеджака, 10А (37 м²)
О нас говорят
Хорошая услуга «Личный помощник». За вами закрепляют менеджера, который подбирает для вас варианты, помогает с подписанием договора и проверкой квартиры. Константин оперативно отвечал на наши вопросы и подстраивался под возникающие в ходе поиска требования.
Ins Fairy
Нашел себе отличную квартиру в Мск на Локалс. В этот раз пользовался услугой Личный помощник; Каждый день мне присылали варианты и по моим ответам уточняли мои критерии. В итоге выбрали прямо то, что мне было надо!
Ilya Malov
Отличный сервис! Нужный вариант подобрали уже на следующий день после обращения. Документы с арендодателем я подписала в конце той же недели и сразу переехала. Квартира после ремонта, все новое, я — первый арендатор, до метро 15 минут пешком. Это потрясающе!
Maria Levkina
Поиски квартиры заняли ровно неделю, Андрей проверял все варианты и составлял подробное описание. Так же оказал помощь при подписании договора. И вот теперь, я снимаю квартиру без комиссии, от собственника, с хорошим ремонтом, в новом доме по приемлемой цене.
Dmitry Kovtun
Клиентоориентированность — на высшем уровне. И форма связи любая.. мне было удобно общаться через почту — не проблема: в будни и даже в выходные, и днем и ночью — постоянно на связи) В какой-то момент даже подумала, что личный помощник никогда не отдыхает))
Teresa Olehnovich
Услуга «Личный помощник» — это не только дешевле, чем платить деньги каким-то непонятным посредникам или риэлторам, но и гарантированная ежедневная консультация от грамотного специалиста. Одним словом, всё очень понравилось.
Алина Василевская
Моя оценка 5! Нашли с личным помощником то, что нужно!! Удобно и безопасно. Отличный, проверенный сайт! Спасибо, Локалс!
Еленка Потапова
Искал с помощью услуги «Личный помощник». Сервис справился с поставленной перед ним задачей — найти мне жильё в короткие сроки (дедлайн 1,5 недели). Спасибо!
Dimas
У меня только положительные впечатления остались. Мне присылал варианты каждый день, иногда даже дважды. Всегда оперативно реагировал на мои пожелания. В итоге, так и сняли одну из предложенных квартир и очень довольны.
Любовь












