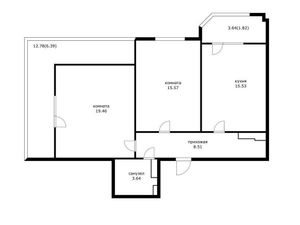
2-к кв. Краснодарский край, Краснодар Ставропольская ул., 183/2 (65.51 м²)
ЧМР один из лучших районов города, считается спальным и семейным. Продам 2-х к.кв. по указанному адресу. Общая площадь 65,5м2 +2 балкона, на две стороны. Квартира с ремонтом, мебелью и техникой(стиральная и посудомоечная машина, бойлер, сплит-система - 2шт, духовой шкаф, варочная поверхность, ). В собственности давно. Вся инфраструктура в шаговой доступности. КубГУ, школы, садики, магазины, торговые центры, аэропорт, Железнодорожный вокзал, поликлиники, Восточный рынок, парк Солнечный остров, СБС, Медиа плаза, Галактика, остановки общественного транспорта, трамваи, троллейбусы, маршрутки, автобусы в любое направление города. Очень удобная транспортная развязка. Продажа от собственника без риэлторских %. Реальному покупателю торг. Агентство просьба не беспокоить.
Квартира НАСТОЯЩАЯ не ФЕЙК, всё соответствует.
Особенности
Другие 2-х комнатные квартиры
2-к кв. Краснодарский край, Краснодар Ставропольская ул., 107/9 (65.9 м²)
2-к кв. Краснодарский край, Краснодар Ставропольская ул., 107/10 (61.0 м²)
2-к кв. Краснодарский край, Краснодар ул. Автолюбителей, 1/3к2 (67.0 м²)
2-к кв. Краснодарский край, Краснодар ул. Героев-Разведчиков, 8к4 (55.5 м²)
2-к кв. Краснодарский край, Краснодар ул. Героев-Разведчиков, 8к4 (52.7 м²)
2-к кв. Краснодарский край, Краснодар ул. Им. Героя Сарабеева В.И., 9 (57.0 м²)
Последние добавленные апартаменты
1-к кв. Краснодарский край, Краснодар ул. Ивана Беличенко, 90к2 (37.3 м²)
1-к кв. Краснодарский край, Краснодар ул. Летчика Позднякова, 2к14 (37.8 м²)
3-к кв. Краснодарский край, Краснодар ул. Имени Дзержинского, 54/14 (90.2 м²)
О нас говорят
Хорошая услуга «Личный помощник». За вами закрепляют менеджера, который подбирает для вас варианты, помогает с подписанием договора и проверкой квартиры. Константин оперативно отвечал на наши вопросы и подстраивался под возникающие в ходе поиска требования.
Ins Fairy
Нашел себе отличную квартиру в Мск на Локалс. В этот раз пользовался услугой Личный помощник; Каждый день мне присылали варианты и по моим ответам уточняли мои критерии. В итоге выбрали прямо то, что мне было надо!
Ilya Malov
Отличный сервис! Нужный вариант подобрали уже на следующий день после обращения. Документы с арендодателем я подписала в конце той же недели и сразу переехала. Квартира после ремонта, все новое, я — первый арендатор, до метро 15 минут пешком. Это потрясающе!
Maria Levkina
Поиски квартиры заняли ровно неделю, Андрей проверял все варианты и составлял подробное описание. Так же оказал помощь при подписании договора. И вот теперь, я снимаю квартиру без комиссии, от собственника, с хорошим ремонтом, в новом доме по приемлемой цене.
Dmitry Kovtun
Клиентоориентированность — на высшем уровне. И форма связи любая.. мне было удобно общаться через почту — не проблема: в будни и даже в выходные, и днем и ночью — постоянно на связи) В какой-то момент даже подумала, что личный помощник никогда не отдыхает))
Teresa Olehnovich
Услуга «Личный помощник» — это не только дешевле, чем платить деньги каким-то непонятным посредникам или риэлторам, но и гарантированная ежедневная консультация от грамотного специалиста. Одним словом, всё очень понравилось.
Алина Василевская
Моя оценка 5! Нашли с личным помощником то, что нужно!! Удобно и безопасно. Отличный, проверенный сайт! Спасибо, Локалс!
Еленка Потапова
Искал с помощью услуги «Личный помощник». Сервис справился с поставленной перед ним задачей — найти мне жильё в короткие сроки (дедлайн 1,5 недели). Спасибо!
Dimas
У меня только положительные впечатления остались. Мне присылал варианты каждый день, иногда даже дважды. Всегда оперативно реагировал на мои пожелания. В итоге, так и сняли одну из предложенных квартир и очень довольны.
Любовь












