










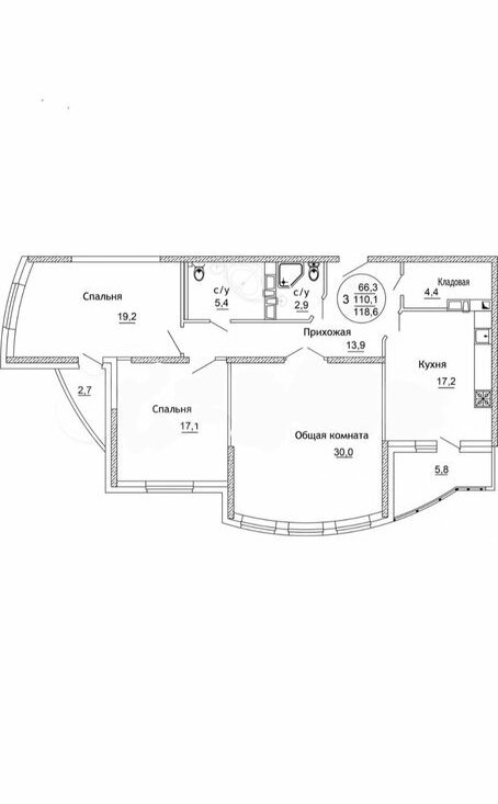
3-комнатная квартира: Краснодар, Черниговская улица, 1 (110.2 м²)
Продается просторная трехкомнатная квартира в новом доме, расположенная на 7 этаже 18-этажного здания, построенного в 2020 году. Общая площадь квартиры составляет 110,2 кв. м, а кухня занимает 17,2 кв. м, что создает отличные условия для комфортного проживания и приема гостей. Высокие потолки в 2,8 метра добавляют ощущение простора. Видовые окна на парк Галицкого и стадион.
Квартира ждет вашего дизайнерского решения, так как предлагаетсябез ремонта. Это дает возможность создать интерьер по своему вкусу. В квартире есть две отдельные ванные комнаты, что очень удобно для семьи. Также есть лоджия и балкон, что позволяет наслаждаться свежим воздухом и видом на город.
Дом оборудован как пассажирским, так и грузовым лифтами, а также подземной парковкой, поэтому вы можете быть спокойны за свою машину. Здание в отличном состоянии, так как построено совсем недавно.
Инфраструктура района включает в себя все необходимое: рядом расположены школы, детские сады, клиники и магазины. Все это делает жизнь удобной и комфортной. Хорошая транспортная доступность позволит быстро добраться до центра города и других районов.
Сделка оформляется напрямую от собственника. Возможна покупка в ипотеку. Все документы готовы к сделке, обременений нет, поэтому покупка пройдет легко и без лишних хлопот.
Приглашаю вас на просмотр, чтобы на месте оценить все преимущества этой квартиры. Звоните!
СОБСТВЕННИК, НЕ АГЕНСТВО
Особенности
Другие 3-х комнатные квартиры
3-к кв. Краснодарский край, Краснодар Российская ул., 79/3к2 (68.3 м²)
3-к кв. Краснодарский край, Краснодар ул. Командорская, 9/1 (110.0 м²)
Последние добавленные апартаменты
1-комнатная квартира: Краснодар, улица Лётчика Позднякова, 2к24 (37 м²)
Студия Краснодарский край, Краснодар ул. Имени В.Н. Мачуги, 166к3 (29.8 м²)
1-к кв. Краснодарский край, Краснодар ул. Евгении Жигуленко, 5к2 (42.0 м²)
О нас говорят
Хорошая услуга «Личный помощник». За вами закрепляют менеджера, который подбирает для вас варианты, помогает с подписанием договора и проверкой квартиры. Константин оперативно отвечал на наши вопросы и подстраивался под возникающие в ходе поиска требования.
Ins Fairy
Нашел себе отличную квартиру в Мск на Локалс. В этот раз пользовался услугой Личный помощник; Каждый день мне присылали варианты и по моим ответам уточняли мои критерии. В итоге выбрали прямо то, что мне было надо!
Ilya Malov
Отличный сервис! Нужный вариант подобрали уже на следующий день после обращения. Документы с арендодателем я подписала в конце той же недели и сразу переехала. Квартира после ремонта, все новое, я — первый арендатор, до метро 15 минут пешком. Это потрясающе!
Maria Levkina
Поиски квартиры заняли ровно неделю, Андрей проверял все варианты и составлял подробное описание. Так же оказал помощь при подписании договора. И вот теперь, я снимаю квартиру без комиссии, от собственника, с хорошим ремонтом, в новом доме по приемлемой цене.
Dmitry Kovtun
Клиентоориентированность — на высшем уровне. И форма связи любая.. мне было удобно общаться через почту — не проблема: в будни и даже в выходные, и днем и ночью — постоянно на связи) В какой-то момент даже подумала, что личный помощник никогда не отдыхает))
Teresa Olehnovich
Услуга «Личный помощник» — это не только дешевле, чем платить деньги каким-то непонятным посредникам или риэлторам, но и гарантированная ежедневная консультация от грамотного специалиста. Одним словом, всё очень понравилось.
Алина Василевская
Моя оценка 5! Нашли с личным помощником то, что нужно!! Удобно и безопасно. Отличный, проверенный сайт! Спасибо, Локалс!
Еленка Потапова
Искал с помощью услуги «Личный помощник». Сервис справился с поставленной перед ним задачей — найти мне жильё в короткие сроки (дедлайн 1,5 недели). Спасибо!
Dimas
У меня только положительные впечатления остались. Мне присылал варианты каждый день, иногда даже дважды. Всегда оперативно реагировал на мои пожелания. В итоге, так и сняли одну из предложенных квартир и очень довольны.
Любовь












