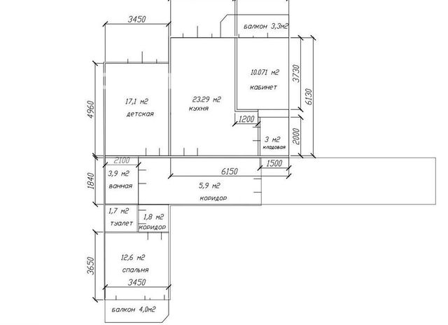
3-комнатная квартира: Краснодар, улица Героя Владислава Посадского, 49 (87.6 м²)
Продам трёх комнатную квартиру в отличном районе. Квартира имеет идеальную планировку, большая кухня-гостинная, просторная детская, уютная большая спальня, кабинет, 2 теплых остекленных балкона, кладовая, раздельный сан.узел. отличная планировка и этаж. Красивый вид на обе стороны дома ( квартира-бабочка). В квартире выполнен качественный ремонт ( постелен ламинат, уложена плитка в сан.узлах и коридоре). Шикарный дом и локация. Чистый подъезд с камерами видеонаблюдения. Приятные соседи. Вся инфраструктура в шаговой доступности. 5 детских садов в 5 минутах ходьбы, школа рядом с домом,4 минуты. Остановки общественного транспорта рядом. торговый центр. до парка Краснодар 15 минут пешком.
В квартире остается дорогая кухня со всей встроенной техникой ( духовой шкаф, микроволновая печь, вытяжка, посудомоечная машина). в кладовой остается система хранения. Установлены качественные сплит-системы в каждой из комнат( 4шт). при необходимости можем оставить и остальную мебель и технику.
Я собственник. покупал квартиру у застройщика за наличные деньги. Никаких ограничений и обременений нет. Все документы говы к сделке. Рассмотрю варианты обмена на 1 и 2-х комнатную квартиру в этом же районе
Особенности
Другие 3-х комнатные квартиры
3-к кв. Краснодарский край, Краснодар ул. Героя Владислава Посадского, 49 (87.5 м²)
3-к кв. Краснодарский край, Краснодар ул. Героев-Разведчиков, 11/5 (84.2 м²)
3-комнатная квартира: Краснодар, улица Героев-Разведчиков, 8к2 (68.9 м²)
3-к кв. Краснодарский край, Краснодар ул. Им. Героя Яцкова И.В., 12 (80.65 м²)
Последние добавленные апартаменты
2-комнатная квартира: Краснодар, улица Краеведа Соловьёва, 6к5 (59.5 м²)
1-комнатная квартира: Краснодар, улица Красных Партизан, 1/4к5 (31 м²)
2-комнатная квартира: Краснодар, улица Красных Партизан, 1/4к15 (55.5 м²)
1-к кв. Краснодарский край, Краснодар ул. Имени Героя Советского Союза Якова Кобзаря, 2 (35.0 м²)
О нас говорят
Хорошая услуга «Личный помощник». За вами закрепляют менеджера, который подбирает для вас варианты, помогает с подписанием договора и проверкой квартиры. Константин оперативно отвечал на наши вопросы и подстраивался под возникающие в ходе поиска требования.
Ins Fairy
Нашел себе отличную квартиру в Мск на Локалс. В этот раз пользовался услугой Личный помощник; Каждый день мне присылали варианты и по моим ответам уточняли мои критерии. В итоге выбрали прямо то, что мне было надо!
Ilya Malov
Отличный сервис! Нужный вариант подобрали уже на следующий день после обращения. Документы с арендодателем я подписала в конце той же недели и сразу переехала. Квартира после ремонта, все новое, я — первый арендатор, до метро 15 минут пешком. Это потрясающе!
Maria Levkina
Поиски квартиры заняли ровно неделю, Андрей проверял все варианты и составлял подробное описание. Так же оказал помощь при подписании договора. И вот теперь, я снимаю квартиру без комиссии, от собственника, с хорошим ремонтом, в новом доме по приемлемой цене.
Dmitry Kovtun
Клиентоориентированность — на высшем уровне. И форма связи любая.. мне было удобно общаться через почту — не проблема: в будни и даже в выходные, и днем и ночью — постоянно на связи) В какой-то момент даже подумала, что личный помощник никогда не отдыхает))
Teresa Olehnovich
Услуга «Личный помощник» — это не только дешевле, чем платить деньги каким-то непонятным посредникам или риэлторам, но и гарантированная ежедневная консультация от грамотного специалиста. Одним словом, всё очень понравилось.
Алина Василевская
Моя оценка 5! Нашли с личным помощником то, что нужно!! Удобно и безопасно. Отличный, проверенный сайт! Спасибо, Локалс!
Еленка Потапова
Искал с помощью услуги «Личный помощник». Сервис справился с поставленной перед ним задачей — найти мне жильё в короткие сроки (дедлайн 1,5 недели). Спасибо!
Dimas
У меня только положительные впечатления остались. Мне присылал варианты каждый день, иногда даже дважды. Всегда оперативно реагировал на мои пожелания. В итоге, так и сняли одну из предложенных квартир и очень довольны.
Любовь












